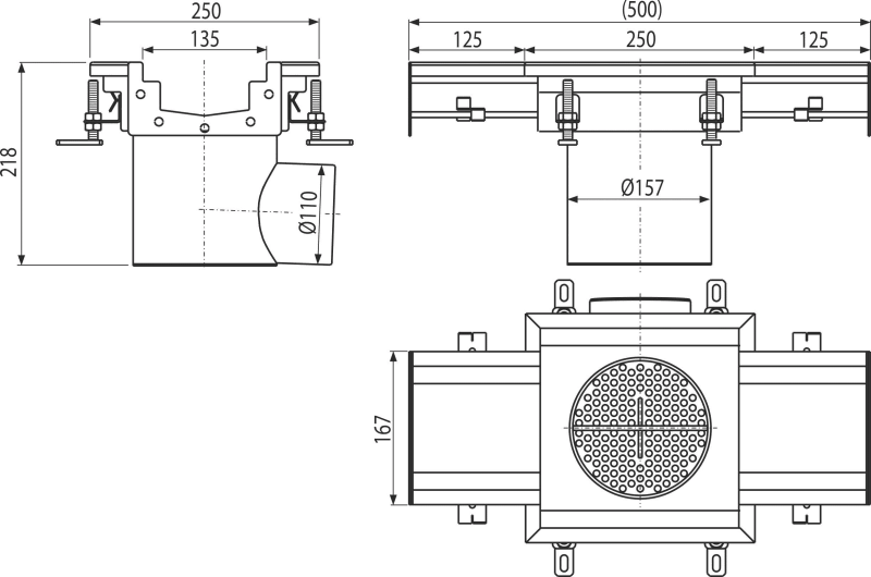
Sifon industrial 250×250-135, oțel inoxidabil AISI 304

APR6-1211-135

Debit de apă admis de grătar324 l/min
Sifon anti miros umed50 mm
  • Pentru evacuarea apei din instalații industriale de mari dimensiuni, precum și alte facilități comerciale în interiorul clădirilor, de ex. în industria chimică și alimentară
  • Pentru a drena cantități mare de apă, de asemenea, potrivite pentru distanțe lungi
  • Canale de scurgere industriale din otel inoxidabil (tratat termic prin decaparea și pasivare),proces care garantează faptul că oțelul inoxidabil, chiar și după mai mulți ani își păstrează proprietățile și o funcționare fiabilă
  • Întregul sistem se fixează ferm în beton cu un sistem reglabil simplu și cu ancorare laterală
  • Debit ridicat
  • Înălțime reglabilă în intervalul 80–125 mm
  • Garnitura asigură o etanșare completă
  • Material sifon de pardoseală: oțel inoxidabil de 1,5 mm, DIN 1.4301
  • EN 1253-1
Cantitate (pachet) 1 buc
Cantitate (palet) - buc
Dimensiuni (buc) 218×500×250 mm
Greutate (buc) 5,5735 kg
Greutate (pachet) 5,5735 kg
Greutate (palet) - kg
  • Sifon de pardoseală
  • Picioare 4 buc
  • Garnitură 2 buc
  • Sifon anti miros
  • Sita pentru a capta murdăria
  • Set de fixare
CodEANFișă tehnică
APR6-1211-1358595580573461Technický list